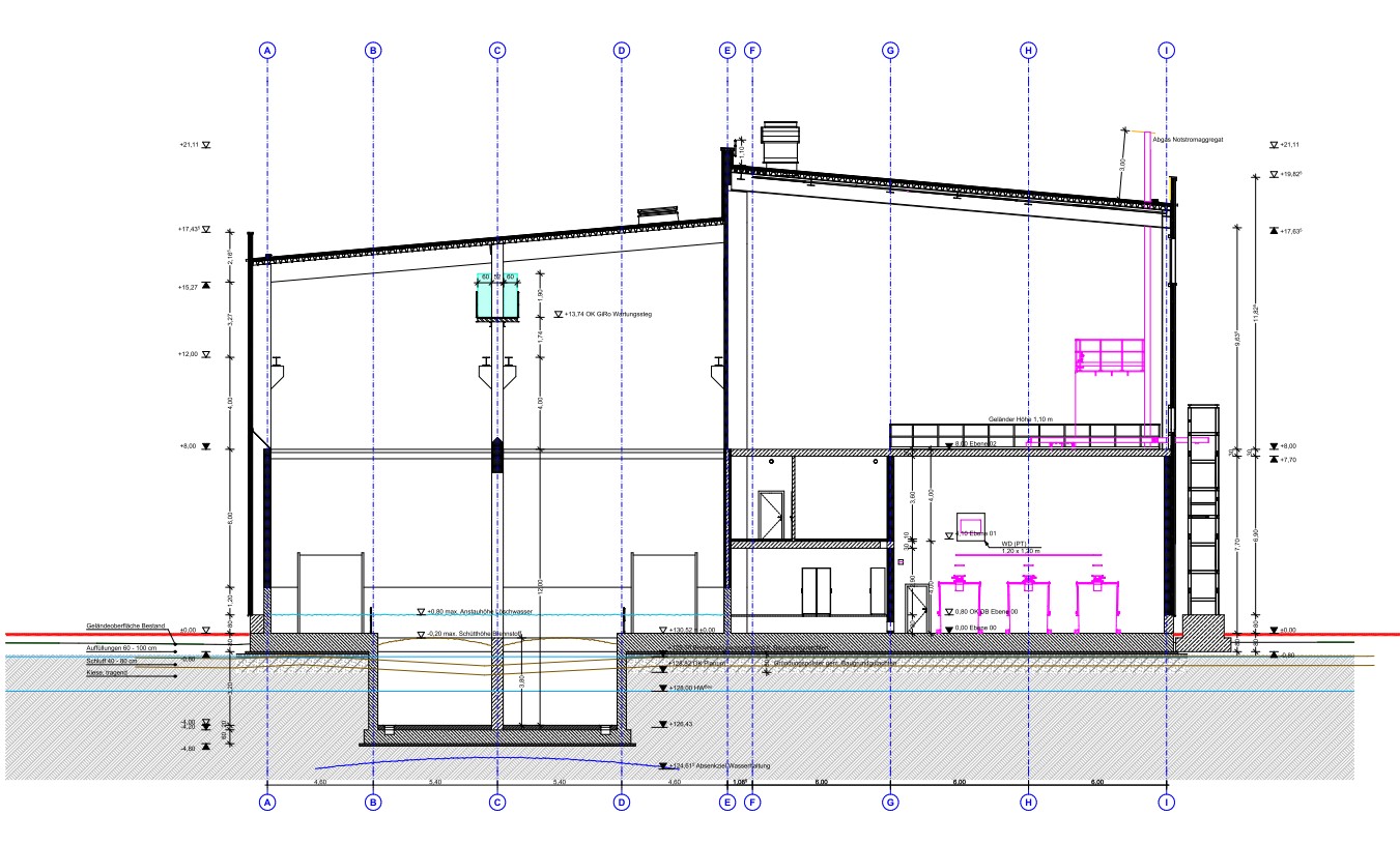
24260 Wasserdichte Baugrube Düren Kanzan Aufbau HeizkrafwerkDraufsicht HeizkraftwerkGrundriss HeizkraftwerkDimensionierung AnliefergrubeVerschiebungen AnliefergrubeAusgehobener Verbau im GrundwasserSetzen des Verbauaufsatzes auf die VerbauboxBeladung des MischfahrzeugsVerbaubox mit Trägern und VerfüllungVerfüllung der Verbauabschnitte 1Verfüllung der Verbauabschnitte 2Probenahme PrüfkörperZweitaushubPenetrometermessungAnsicht der Wandfläche innerhalb BaugrubeBaugrube nach ZweitaushubZweitverfüllung mit Kübel 1Zweitverfüllung mit Kübel 2Baugruben ausgehoben DraufsichtBaugruben ausgehoben Weitsicht 1Baugruben ausgehoben Weitsicht 2Baugrube in komplizierter GeometrieTiefe rechteckige Baugrube mit RanderhöhungBesichtigungstermin mit Strabag 1Besichtigungstermin mit Strabag 2Besichtigungstermin mit Strabag 3Baufeld mit fertiggestellten BaugrubenBauschilder FBE + BAU GmbHVerlorene Schalung FlüssigbodenVerlorene Schalung FlüssigbodenVerlorene Schalung FlüssigbodenVerlorene Schalung FlüssigbodenVerlorene Schalung FlüssigbodenVerlorene Schalung Flüssigboden