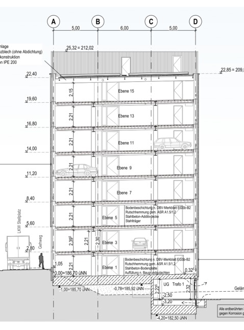
24264 RSS Wand, Bodenlatte und Tiefgründung Gummersbach Bauplan Querschnitt für ZielgebäudeBauplan Technisch Beschreibung GebäudeDraufsicht der RSS Säulen und RSS BodenplattePlanauszug Fundamente Anforderung an FlüssigbodenZiel Hangsicherung mittels RSS WandAufbau vor Ort der Mischtechnik und des VerbauVermessung der BaugrubeNach Aushub vor Bohren für HEB TrägerSetzen HEB Träger in RSS WandMessen in Verbaubox bis SohleVerfüllen Verbauboxen mit RSS Flüssigboden aus örtlichem MaterialVerfüllen Verbauboxen mit RSS Flüssigboden aus örtlichem MaterialVerbaubox wärhend der VerfüllungStahlplatte an Stirn als Trennung zwischen VerbauboxenVerfüllte Verbauboxen mit Trennung mittels Stahlplatte dazwischenZiehen Verbau - Rollenschlitten nach oben ziehenMessung Standsicherheit RSS Flüssigboden und RSS Wand mittels Penetrometerfreigelegte Baugrube mit RSS WandFreilegen RSS WandHerstellung Flüssigboden Bodenplatte als BodenverbesserungZiehen HEB Träger nach Abschluss der Maßnahme aus RSS WandZiehen Verbauboxen nach VerfüllungGesamtüberblick der Baugrube RRS Flüssigboden herstellung